Projekt:
kv Kromosomen, Hagastaden
Ort:
Stockholm
Area:
ca 1300m2
Uppdragsgivare:
Ikano Bostad AB
Byggnadsår:
2019
Arkitekt hus:
Ripellino arkitekter
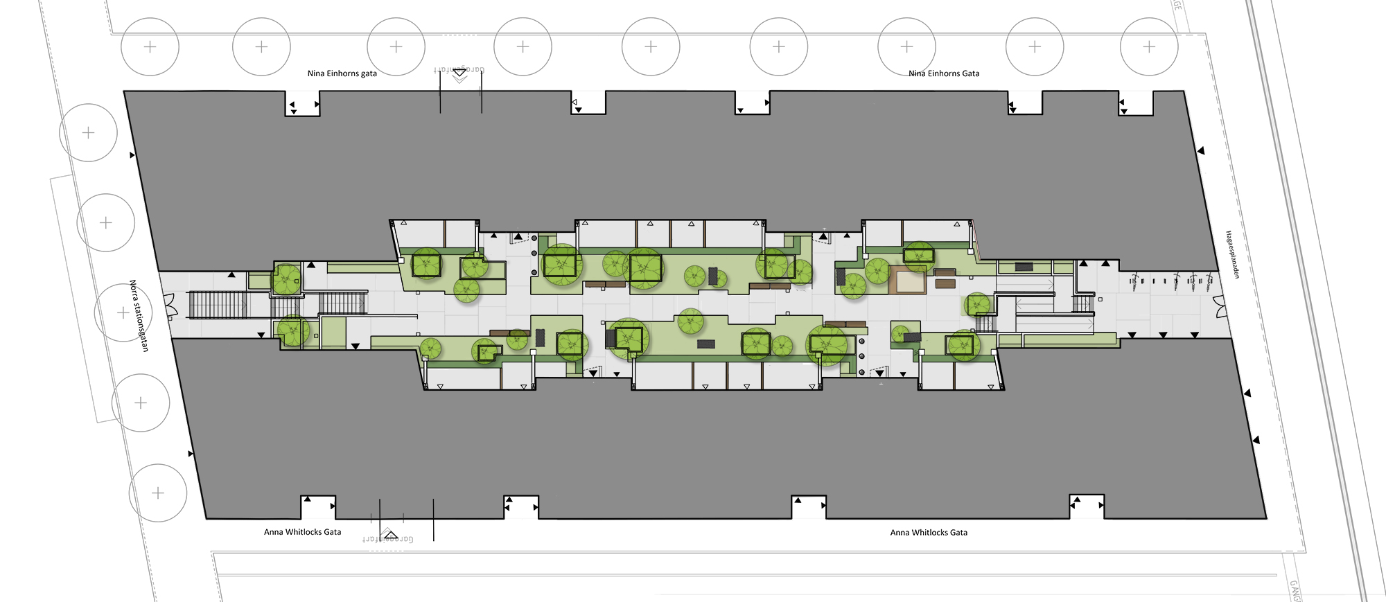
Kv Kromosomens grönskande bostadsgård är en kontrast till gatumiljön kring kvarteret. Från lägenheter och balkonger utgör gården ett blickfång med flera stora träd och planteringar i rektangulära former. På gården finns lägenheter med uteplatser, ett långsträckt gångstråk, sittplatser och en liten sandlåda för de minsta barnen. Gården är långsmal, ca 90 meter lång och bara ca 15 meter bred.
En av utmaningarna har varit att skapa skydd för boende på gårdsnivån med hjälp av skärmar, häckar och vintergröna planteringar. Träden står i upphöjda rektangulära planteringslådor av varmförzinkat stål. Gestaltningskoncept för gårdsrummet var att efterlikna ett igenväxande stenbrott. Planteringarna på gården omhändertar, fördröjer och renar regnvatten från byggnadernas tak via stuprör och öppna dagvattenrännor till växtbäddarna.
Bostadsgården är uppbyggd på bjälklag med öppningar mot Norra Stationsgatan i söder och Hagaesplanaden i norr.